event
イベント情報
- 京都府北部
【最終開催】ハーフ吹抜け×ロフト|完成見学会≪福知山市旭が丘≫
開放感を保ちながら賢く空間を活用
ハーフ吹抜けで生まれる開放感と、ロフトのある暮らしを両立。
家族との距離を感じながらも、ほどよいプライベート空間を確保。
上下のつながりが楽しい、立体的な暮らしが魅力の住まいです。



無駄を削ぎ落としたフォルムに、深みのあるマットブラックが際立つ外観。
シンプルでありながら圧倒的な個性を放つ、モダンデザインです。


1st floor

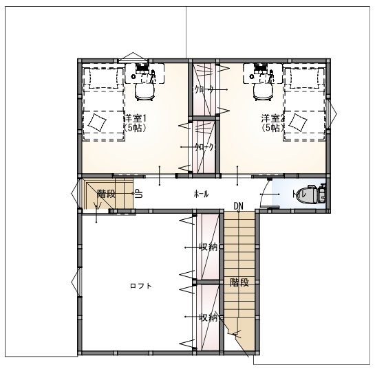
2nd floor

建築面積 36.60坪
3LDK+ロフト
お電話でのご予約は
☎0120-104-747 福知山ギャラリーまでお問合わせください。
※当日のご予約はお電話にてお願いいたします。
ホームページからのご予約は
下記コンタクトフォームより日時をご選択ください。
ご予約が重なった際にはお時間の調整をお願いする場合がございます。
ご了承ください。
\家づくり相談会を毎日開催中/
福知山ギャラリーへのご来店予約はこちらから
福知山市北小谷ヶ丘モデルハウス【平屋】へのご来場予約はこちらから
福知山市小谷ヶ丘モデルハウス【一階寝室】へのご来場予約はこちらから
| 開催日 |
|---|
イベント会場
- 会場名
- 福知山市旭が丘
- 住所
- 福知山市旭が丘
