イベント情報
- 京都府北部
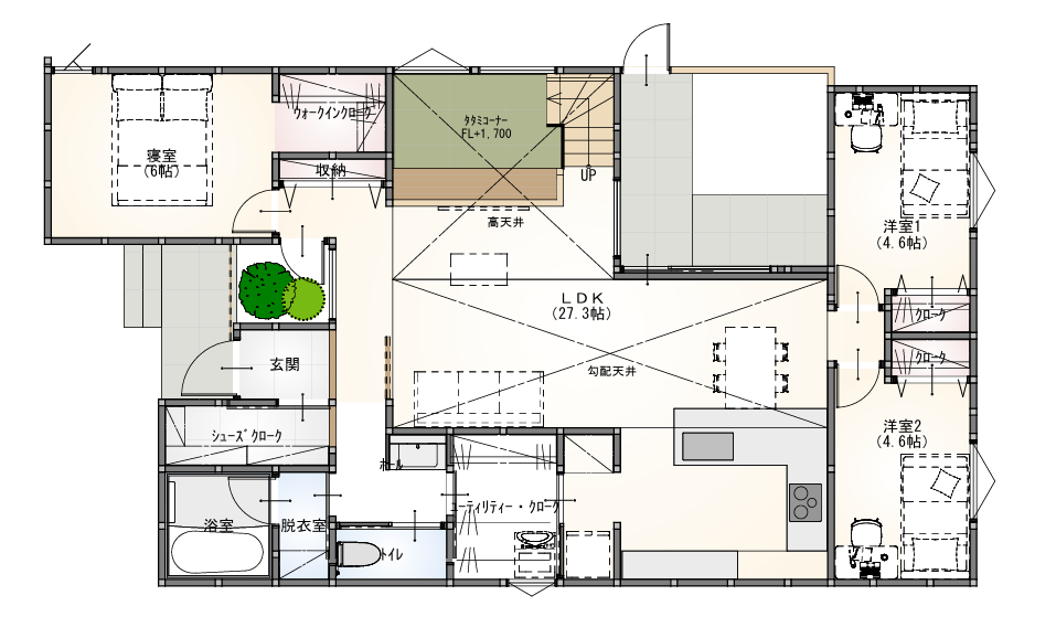
【舞鶴市七日市】スキップフロアのある和モダン平屋モデルハウス
平屋の暮らし。
ワンフロアで生活動線が完結する、平屋の暮らし。
スキップフロアや大きな吹き抜けで段差をつけた空間デザイン。
和モダンをベースにしたコーディネートで上質な重厚感を与え、シンプルながらも印象に残るリビングを演出します。


-
段差がデザインする、くつろぎのリビング
スキップフロアのタタミコーナーの下には、隠し収納部屋を設けました。
-
空間を立体的に活かすことで、LDKの広がりを損なうことなく、大容量の収納を確保しています。



-
通りからは見えない中庭スペース
-
囲われた中庭は通りからの視線が気になりません。
-
大きな窓から届く光で室内は明るい空間を保ちます。


-
LDKで存在感を放つGRAFTEKTのL型キッチン
-
キッチンに立った瞬間、視線の先まで心地よく広がる、奥行きのあるLDK空間。
-
下がり天井の木目が天井ラインを整え、空間全体に落ち着きと上質さをもたらします。


-
独立した洗面スペースとサンルーム
-
雨の日でも洗濯物が干すことのできるサンルームや家族間のプライバシーを守る独立した洗面スペース。
-
コンパクトにまとまった水回りの動線にもご注目ください。

-
無駄を削ぎ落したシルエットに素材の質感が映える外観デザイン
-
水平ラインを強調した外壁と、深く伸びる片流れ屋根が、落ち着きと重厚感を感じさせます。
-
道路側からは室内の気配を抑えつつ、奥に設けた木格子のアプローチが、内と外をやさしくつなぐ“迎えの間”を演出。
-
格子越しに感じる光と陰影が、住まいに静かな表情を与えます。
1st floor

建築面積 32.71坪
お電話でのご予約は
☎0120-104-747 福知山ギャラリーまでお問合わせください。
※当日のご予約はお電話にてお願いいたします。
ホームページからのご予約は
下記コンタクトフォームより日時をご選択ください。
ご予約が重なった際にはお時間の調整をお願いする場合がございます。
ご了承ください。
お電話でのご予約は
☎0120-104-747 福知山ギャラリーまでお問合わせください。
※当日のご予約はお電話にてお願いいたします。
ホームページからのご予約は
下記コンタクトフォームより日時をご選択ください。
ご予約が重なった際にはお時間の調整をお願いする場合がございます。
ご了承ください。
\家づくり相談会を毎日開催中/
福知山ギャラリーへのご来店予約はこちらから
【平屋】福知山市北小谷ヶ丘モデルハウスへのご来場予約はこちらから
【一階寝室】福知山市小谷ヶ丘モデルハウスへのご来場予約はこちらから
| 開催日 | 2026年5月14日(木) 2026年5月15日(金) 2026年5月16日(土) 2026年5月17日(日) 2026年5月21日(木) 2026年5月22日(金) 2026年5月23日(土) 2026年5月24日(日) 2026年5月28日(木) 2026年5月29日(金) 2026年5月30日(土) 2026年5月31日(日) |
|---|
- 会場名
- 舞鶴市七日市HinataBox展示場
- 住所
- 舞鶴市七日市360-3
| 開催日時 | 空席状況 | |
|---|---|---|
| 5月14日 10:00~ |
○ |
|
| 5月14日 13:00~ |
○ |
|
| 5月14日 15:00~ |
○ |
|
| 5月14日 17:00~ |
○ |
- ◯
- 予約可
- ×
- 満席
| 開催日時 | 空席状況 | |
|---|---|---|
| 5月15日 10:00~ |
○ |
|
| 5月15日 13:00~ |
○ |
|
| 5月15日 15:00~ |
○ |
|
| 5月15日 17:00~ |
○ |
- ◯
- 予約可
- ×
- 満席
| 開催日時 | 空席状況 | |
|---|---|---|
| 5月16日 10:00~ |
○ |
|
| 5月16日 13:00~ |
○ |
|
| 5月16日 15:00~ |
○ |
|
| 5月16日 17:00~ |
○ |
- ◯
- 予約可
- ×
- 満席
| 開催日時 | 空席状況 | |
|---|---|---|
| 5月17日 10:00~ |
○ |
|
| 5月17日 13:00~ |
○ |
|
| 5月17日 15:00~ |
○ |
|
| 5月17日 17:00~ |
○ |
- ◯
- 予約可
- ×
- 満席
| 開催日時 | 空席状況 | |
|---|---|---|
| 5月21日 10:00~ |
○ |
|
| 5月21日 13:00~ |
○ |
|
| 5月21日 15:00~ |
○ |
|
| 5月21日 17:00~ |
○ |
- ◯
- 予約可
- ×
- 満席
| 開催日時 | 空席状況 | |
|---|---|---|
| 5月22日 10:00~ |
○ |
|
| 5月22日 13:00~ |
○ |
|
| 5月22日 15:00~ |
○ |
|
| 5月22日 17:00~ |
○ |
- ◯
- 予約可
- ×
- 満席
| 開催日時 | 空席状況 | |
|---|---|---|
| 5月23日 10:00~ |
○ |
|
| 5月23日 13:00~ |
○ |
|
| 5月23日 15:00~ |
○ |
|
| 5月23日 17:00~ |
○ |
- ◯
- 予約可
- ×
- 満席
| 開催日時 | 空席状況 | |
|---|---|---|
| 5月24日 10:00~ |
○ |
|
| 5月24日 13:00~ |
○ |
|
| 5月24日 15:00~ |
○ |
|
| 5月24日 17:00~ |
○ |
- ◯
- 予約可
- ×
- 満席
| 開催日時 | 空席状況 | |
|---|---|---|
| 5月28日 10:00~ |
○ |
|
| 5月28日 13:00~ |
○ |
|
| 5月28日 15:00~ |
○ |
|
| 5月28日 17:00~ |
○ |
- ◯
- 予約可
- ×
- 満席
| 開催日時 | 空席状況 | |
|---|---|---|
| 5月29日 10:00~ |
○ |
|
| 5月29日 13:00~ |
○ |
|
| 5月29日 15:00~ |
○ |
|
| 5月29日 17:00~ |
○ |
- ◯
- 予約可
- ×
- 満席
| 開催日時 | 空席状況 | |
|---|---|---|
| 5月30日 10:00~ |
○ |
|
| 5月30日 13:00~ |
○ |
|
| 5月30日 15:00~ |
○ |
|
| 5月30日 17:00~ |
○ |
- ◯
- 予約可
- ×
- 満席
