イベント情報
- 京都府北部
【2日間限定開催】介護を見据えて計画した間取りのお家|完成見学会≪福知山市寺≫
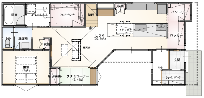
介護も日常も快適な間取り設計
将来の介護を見据え、1階寝室とトイレを含む水まわりを寝室周辺に集約。
移動負担を抑えた間取りとしました。
吹抜けのある玄関ホールと高天井のリビング、
大開口の窓がお庭とつながる、明るく心地よい住まいです。

家族ロッカーをはじめ、大容量のパントリーやファミリークローク、シューズクロークを計画。
使う場所の近くに収納を設けることで、家事動線が整い、日々の片付けもスムーズに。
生活感を抑え、すっきりとした空間を保つことができます。


水平ラインを強調した重心の低いフォルムが、落ち着きと安心感を与える外観デザイン。
グレージュを基調とした外壁に、軒の深さと陰影が上質な表情を生み出します。
道路側からの視線に配慮しながらも、中庭に面した大開口が内と外をやさしくつなぎ、プライバシーと開放感を両立した住まいです。
1st floor

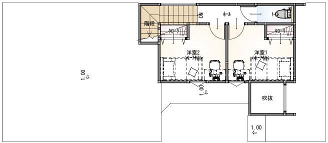
2nd floor

建築面積 34.97坪
3LDK+タタミコーナー
お電話でのご予約は
☎0120-104-747 福知山ギャラリーまでお問合わせください。
※当日のご予約はお電話にてお願いいたします。
ホームページからのご予約は
下記コンタクトフォームより日時をご選択ください。
ご予約が重なった際にはお時間の調整をお願いする場合がございます。
ご了承ください。
\家づくり相談会を毎日開催中/
福知山ギャラリーへのご来店予約はこちらから
福知山市北小谷ヶ丘モデルハウス【平屋】へのご来場予約はこちらから
福知山市小谷ヶ丘モデルハウス【半平屋(一階寝室)】へのご来場予約はこちらから
| 開催日 | 2026年3月7日(土) 2026年3月8日(日) |
|---|
- 会場名
- 福知山市寺
- 住所
- 福知山市寺
| 開催日時 | 空席状況 | |
|---|---|---|
| 3月7日 10:00 ~ |
○ |
|
| 3月7日 13:00 ~ |
○ |
|
| 3月7日 15:00 ~ |
○ |
|
| 3月7日 17:00 ~ |
○ |
- ◯
- 予約可
- ×
- 満席
