イベント情報
- 京都府北部
【2日間限定開催】中庭がある1階寝室のお家|完成見学会≪福知山市篠尾≫
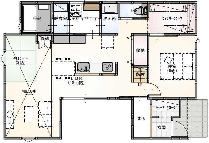
庭を囲み、一階で暮らす家
主寝室を一階に配置し、生活のほとんどをワンフロアで完結。
階段に頼らない動線は、今も将来も安心です。
“平屋のように暮らせる”という価値を持った住まい。
コの字に囲まれた庭が、住まいの中心に光と開放感をもたらします。
リビングから自然と視線が抜け、外と内がゆるやかにつながる設計。
プライバシーを守りながら、庭を“自分たちだけの居場所”として楽しむことができます。

脱衣室からランドリー、ファミリークロークまでを横並びに配置。
毎日の家事を効率よくこなせる、無駄のない動線計画です。
美しさだけでなく、暮らしやすさまで設計された間取りです。

建物に囲まれたコの字の庭が、住まいの中心に光と緑を届けます。
外からの視線を抑えながら、内側へと開く設計。
リビングから庭へとつながる空間は、
家族だけのプライベートガーデンとして日常に潤いをもたらします。
1st floor

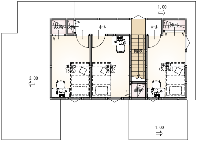
2nd floor

建築面積 32.50坪
3LDK+タタミコーナー
お電話でのご予約は
☎0120-104-747 福知山ギャラリーまでお問合わせください。
※当日のご予約はお電話にてお願いいたします。
ホームページからのご予約は
下記コンタクトフォームより日時をご選択ください。
ご予約が重なった際にはお時間の調整をお願いする場合がございます。
ご了承ください。
\家づくり相談会を毎日開催中/
福知山ギャラリーへのご来店予約はこちらから
福知山市北小谷ヶ丘モデルハウス【平屋】へのご来場予約はこちらから
福知山市小谷ヶ丘モデルハウス【半平屋(一階寝室)】へのご来場予約はこちらから
| 開催日 | 2026年3月20日(金) 2026年3月21日(土) 2026年3月22日(日) |
|---|
- 会場名
- 福知山市篠尾
- 住所
- 福知山市篠尾
| 開催日時 | 空席状況 | |
|---|---|---|
| 3月20日 10:00 ~ |
○ |
|
| 3月20日 13:00 ~ |
○ |
|
| 3月20日 15:00 ~ |
○ |
|
| 3月20日 17:00 ~ |
○ |
- ◯
- 予約可
- ×
- 満席
| 開催日時 | 空席状況 | |
|---|---|---|
| 3月21日 10:00 ~ |
○ |
|
| 3月21日 13:00 ~ |
○ |
|
| 3月21日 15:00 ~ |
○ |
|
| 3月21日 17:00 ~ |
○ |
- ◯
- 予約可
- ×
- 満席
