イベント情報
- 京都府北部
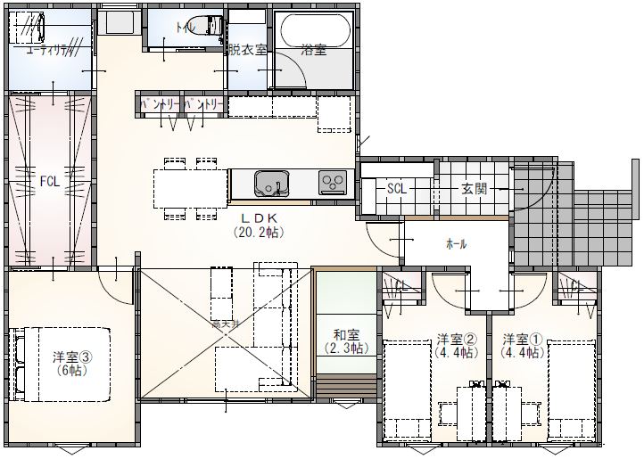
【2日間限定開催】中庭のある平屋|完成見学会≪福知山市石原≫
プライベート感のある中庭で、明るく開放的な平屋
高天井と大きな窓が生み出す、明るく開放的な平屋。
ワンフロアで暮らしが完結する平屋は、移動のストレスを減らし、家族のつながりも自然と深まる住まい。
上下階のない安心感と効率的な動線で、日々の暮らしがより快適に。
外とのつながりやプライベート性も両立し、落ち着きと開放感を兼ね備えた住まいです。

グレーベージュをベースにコーディネートした、上質な一体型LDK。
外とのつながりを感じる大開口と、落ち着いた素材感が心地よい寛ぎを演出。
家族が自然と集まる、洗練された空間です。
直線美が際立つシンプルな外観。
外からは控えめに、内ではゆったりと過ごせる上質な住まいを演出します。

1st floor
建築面積 26.99坪
3LDK+タタミコーナー
お電話でのご予約は
☎0120-104-747 福知山ギャラリーまでお問合わせください。
※当日のご予約はお電話にてお願いいたします。
ホームページからのご予約は
下記コンタクトフォームより日時をご選択ください。
ご予約が重なった際にはお時間の調整をお願いする場合がございます。
ご了承ください。
\家づくり相談会を毎日開催中/
福知山ギャラリーへのご来店予約はこちらから
福知山市北小谷ヶ丘モデルハウス【平屋】へのご来場予約はこちらから
福知山市小谷ヶ丘モデルハウス【半平屋(一階寝室)】へのご来場予約はこちらから
| 開催日 | 2026年5月16日(土) 2026年5月17日(日) |
|---|
- 会場名
- 福知山市石原
- 住所
- 福知山市石原
| 開催日時 | 空席状況 | |
|---|---|---|
| 5月16日 10:00 ~ |
○ |
|
| 5月16日 13:00 ~ |
○ |
|
| 5月16日 15:00 ~ |
○ |
|
| 5月16日 17:00 ~ |
○ |
- ◯
- 予約可
- ×
- 満席
