分譲住宅
- 石川県
- 金沢市
| 詳細 | 〇全額借入 ○金利0.5% ○40年返済 ○頭金0円 ○ボーナス払い0円 ○諸経費別途 ◇ローン減税可 ※対象者のみ エアコン2台付 照明器具付 カーテン付 家具付 |
||
|---|---|---|---|
| 所在地 | 石川県金沢市柳橋町乙21番4 | 交通 | IRいしかわ鉄道「東金沢」駅 徒歩22分 北陸鉄道「中神谷内」バス停 徒歩5分 |
| 小学校 | 金沢市立千坂小学校 | 中学校 | 金沢市立北鳴中学校 |
| POINT | 上下の移動がない平屋ならではの快適な動線。 流行に左右されない、落ち着きのある上質な空間となっております。 |
||
-
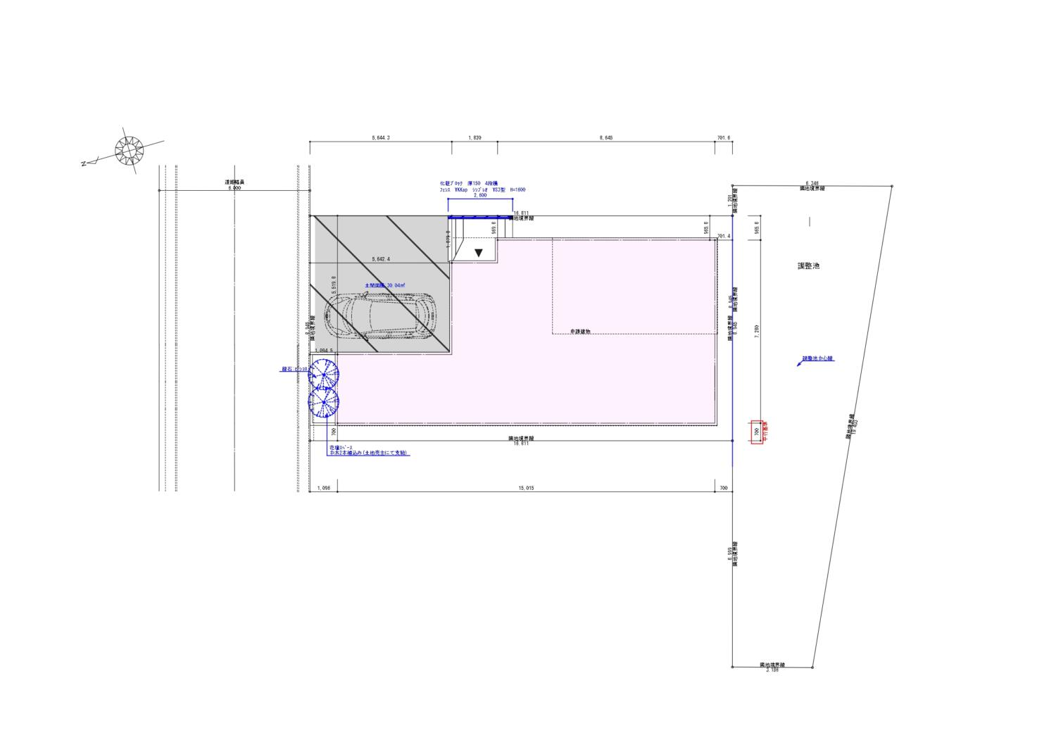
間取り
- 3LDK
-
駐車場
- 2台
-
建物構造
- 木造平屋建て
-
建ぺい率
- 60%
-
容積率
- 200%
-
私道負担
- なし
-
地目
- 宅地
-
現況
- 建築中
-
ガス
- ー
-
電気
- 北陸電力
-
飲料水
- 公営水道
-
排水
- 公共下水
-
土地権
- 所有権
-
用途地域
- 第1種住居専用地域
-
都市計画区域・その他
- 市街化区域
-
防火指定
- 法22条区域
-
建築確認番号
- 第IKJC26-0023号
-
入居時期
- 相談
-
取引形態
- 売主
IMAGES
内観・外観イメージ
LAYOUT
間取り画像
ACCESS
周辺情報
周囲にスーパーやドラッグストア、飲食店など多数。
小中学校も近く、子育て世帯にもおすすめです!
周辺環境
- JR北陸本線 東金沢駅 1300m
- 「中神谷内」バス停
- スギ薬局神谷内店:徒歩4分(350m)
- セブンイレブン金沢神谷内町店:徒歩8分(550m)
- バローゆいの里店:徒歩15分(1000m)
- 千坂こども園:徒歩5分(400m)
- 金沢市立千坂小学校:徒歩10分(700m)
- 金沢市立北鳴中学校:徒歩11分(800m)
- 浅野川総合病院 1200m
- 金沢法光寺郵便局:徒歩8分(600m)



.jpeg)
.jpeg)
.jpeg)
.jpeg)
.jpeg)
.jpeg)

.jpeg)


