分譲住宅
- 富山県
- 富山市
| 詳細 | 家具付・カーテン付・エアコン2台付 ○35年返済 ○頭金0円 ○諸経費別途 ○全額借入 〇金利0.28% 〇ボーナス払い0円 ◇ローン減税可 | ||
|---|---|---|---|
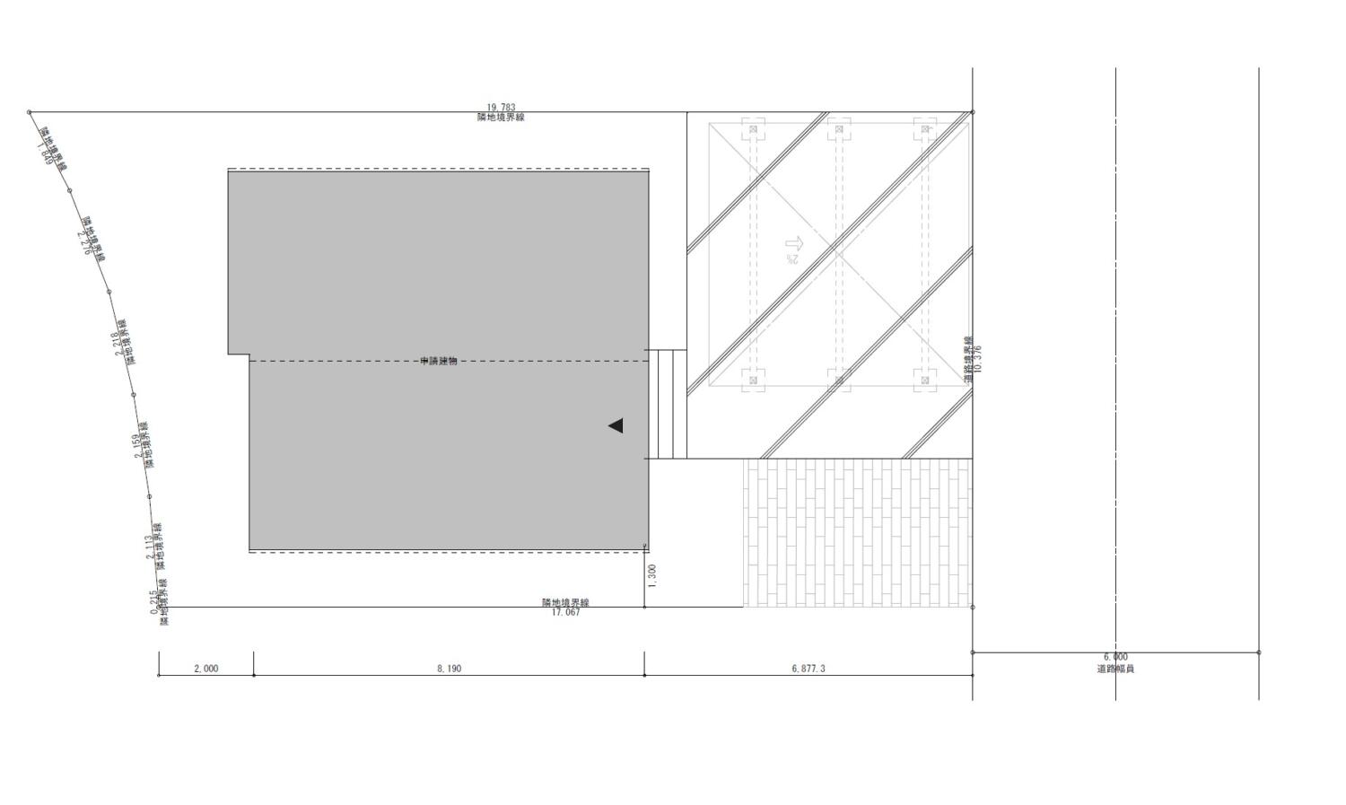
| 所在地 | 富山市米田町2丁目348番9 | 交通 | あいの風とやま鉄道「東富山駅」徒歩18分 富山地鉄バス「米田」徒歩4分 |
| 小学校 | 富山市立豊田小学校 | 中学校 | 富山市立北部中学校 |
| POINT | 近隣には商業店舗や交通機関等もあり、暮らしやすいエリア。 小学校までは徒歩10分!人気の豊田小学校区です。 |
||
-
間取り
- 3LDK
-
駐車場
- 3台
-
土地権
- 所有権
-
建物構造
- 木造2階建て
-
私道負担
- なし
-
建ぺい率
- 60%
-
容積率
- 200%
-
地目
- 宅地
-
飲料水
- 公営水道
-
排水
- 公共下水
-
電気
- 北陸電力
-
ガス
- 日本海ガス(個別プロパン)
-
用途地域
- 第一種中高層住居専用地域
-
都市計画
- 市街化区域
-
建築確認番号
- 第R07確認建築富建セ1227号
-
引渡し
- 相談(2026年5月完成予定)
-
取引態様
- 売主
LAYOUT
間取り画像
35 original concept
ロハスの家のお約束
省エネ住宅で低燃費。夏涼しく・冬暖ったか。上品な品質と装備により生き生きとした生活。
周辺環境までデザインされた好立地で、新生活が始まります。



ACCESS
周辺情報
小学校までは徒歩10分!人気の豊田小学校区です。
前面道路には融雪装置があります◎。
周辺環境
- あいの風とやま鉄道「東富山駅」-1400m
- アルビス-ルミネス店-1700m
- ウエルシア富山豊田店-550m
- セブンイレブン-富山中田3丁目店-1100m
- 富山県岩瀬スポーツ公園-800m
- 富山市立豊田小学校-750m
- 富山市立豊田保育所-1100m
- 富山市立北部中学校-1900m
- 富山信用金庫豊田支店1000m
- 富山地鉄バス「米田」-280m
- 富山豊田郵便局-1100m
- 豊田魚津クリニック-1000m















