分譲住宅
- 岐阜県
| 詳細 | 〇全額借入 〇頭金0円 〇金利0.8% 〇ボーナス払い 〇40年返済 〇諸経費別途 ♢ローン減税可※対象者のみ | ||
|---|---|---|---|
| 所在地 | 岐阜県海津市海津町高洲町字城跡1226-7 | 交通 | 名鉄近鉄バス「高須西」徒歩3分 |
| 小学校 | 海津市立海津小学校 | 中学校 | 海津市立日新中学校 |
| POINT | 家事ラク動線と、帰宅後の動きをスムーズにする「ただいま動線」を両立した平屋の住まい。 玄関から水回りや収納へ無駄なくつながる動線設計で、毎日の家事や身支度を効率的にこなせます。 |
||
-
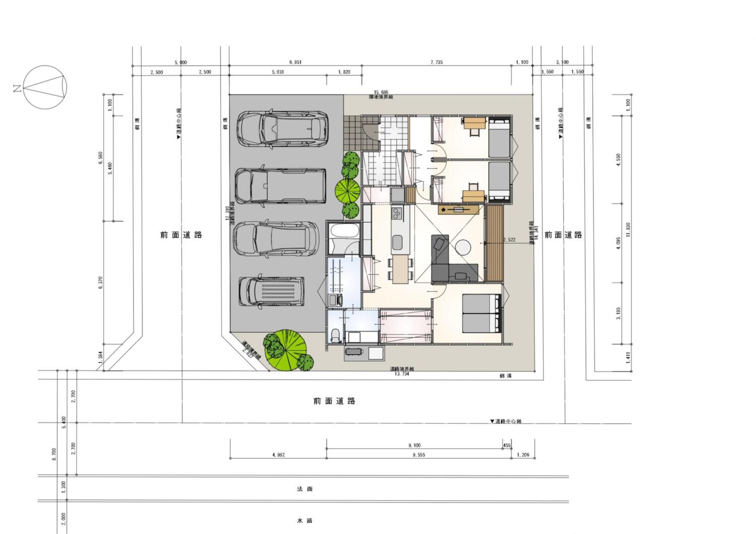
間取り
- 3LDK
-
駐車場
- 3台
-
建物構造
- 木造1階建て
-
建ぺい率
- 70%
-
容積率
- 200%
-
私道負担
- なし
-
地目
- 宅地
-
電気
- 中部電力
-
ガス
- オール電化
-
飲料水
- 公営水道
-
排水
- 公共下水
-
土地権
- 所有権
-
用途地域
- 無指定
-
都市計画区域
- 非線引き区域
-
防火指定
- 指定なし
-
建築年月
- 2026年1月
-
入居時期
- 相談
-
取引形態
- 売主
IMAGES
内観・外観イメージ
LAYOUT
間取り画像
ACCESS
周辺情報
高須認定こども園まで徒歩9分 海津小学校まで徒歩4分とお子様のいるご家庭にもおすすめな立地です!
周辺環境
- 養老鉄道「駒野」 3100m
- 近鉄バス「高須西町」 231m
- 高須認定こども園 553m
- 海津市立日新中学校 1201m
- 海津市立海津小学校 629m
- ヨシヅヤ海津平田店 3081m
- スギドラッグ海津店 615m
- セブンイレブン海津町馬目店 835m
- スーパーセンターオークワ養老店 7000m
- 岡田医院 479m
- 海津郵便局 1135m
- 大垣共立銀行海津支店 646m
- 海津消防署 623m





































